
產品名稱:Q947F電動固定法蘭球閥
產品標簽:球閥,電動固定法蘭球閥
更新時間:2019/5/15 14:56:51
上一個產品: Q347F 蝸輪固定式法蘭球閥
下一個產品:Q647H氣動固定球閥
在線訂購:在線訂購
產品詳情
零件名稱
|
材料
|
|||
材料代號
|
C
|
L
|
P
|
R
|
閥體 閥蓋
|
WCB
|
ZGOOCr17Ni14Mo2(CF3M)
|
ZG1Cr18Ni9Ti(CF8)
|
ZG1Cr18Ni12Mo2Ti(CF8M)
|
球體
|
2Cr13
|
ZGOOCr17Ni14Mo2(CF3M)
|
ZG1Cr18Ni9Ti(CF8)
|
ZG1Cr18Ni12Mo2Ti(CF8M)
|
閥桿
|
2Cr13
|
316L
|
1Cr18Ni9Ti(304)
|
1Cr18Ni12Mo2Ti(316)
|
閥座密封面
|
PTFE、碳素纖維+PTFE、對位聚苯
|
|||
螺柱 螺母
|
35 35CrMoA(B7) 45(2H)
|
2Cr13(420) 1Cr18Ni9 1Cr17Ni2(431)
|
||
填料
|
V型PTFE、柔性石墨
|
|||
試驗壓力(Mpa)
|
公稱壓力(Mpa)
|
壓力級(Class)
|
JIS(MPa)
|
|||||||||
1.6
|
2.5
|
4.0
|
6.4
|
10.0
|
150
|
300
|
400
|
600
|
900
|
10K
|
20K
|
|
強度試驗 |
2.4
|
3.8
|
6.0
|
9.6
|
15.0
|
3.1
|
7.8
|
10.2
|
15.3
|
23.1
|
2.4
|
3.8
|
密封試驗
|
1.8
|
2.8
|
4.4
|
7.0
|
11.0
|
2.2
|
5.6
|
7.5
|
11.2
|
16.8
|
1.5
|
2.8
|
氣密試驗
|
0.5-0.7
|
|||||||||||
工作溫度
|
PTEE≤150℃ PPL E≤300℃ 碳纖≤350℃
|
|||||||||||
適用介質
|
C:水、油、蒸氣 P:硝酸類(溫度≤200℃ ) R:醋酸類(溫度≤200℃ )
|
|||||||||||
|
CX系列執行機構技術參數 |
閥體參數 |
|||
|
電源 |
AC200/220V,50/60Hz |
公稱通徑 |
DN10~300mm |
|
|
輸出力矩 |
50N·M~2000N·M |
公稱壓力 |
PN1.6 2.5 4.0 6.4 31.5MPa(定制) |
|
|
動作范圍 |
0~90° 0~360° |
泄漏量 |
軟密封:零泄漏 |
硬密封:≤額定流量的10-5 |
|
動作時間 |
15秒/30秒/60秒 |
執行機構 |
可另配PSQ、HQ、UNIC、361RS等系列 |
|
|
保護裝置 |
過熱保護 |
流量特性 |
快開特性 |
|
|
環境溫度 |
-30°~60° |
可調范圍 |
DN50-80 |
DN100-800 |
|
250:1 |
350:1 |
|||
|
手動操作 |
同附帶手柄操作 |
基本誤差 |
±1% |
|
|
限位 |
電氣、機械二重限位 |
死區 |
≤1% |
|
|
防護等級 |
相當于IP-65 |
回差 |
≤1% |
|
|
位置測量 |
可選裝開關或電位計 |
適用溫度 |
密封面 |
|
|
驅動電機 |
8W/E |
PTFE≤150℃ RTFE≤180℃ PPL≤300℃ |
||
|
進線接口 |
PE1/2〞進線線鎖 |
|||
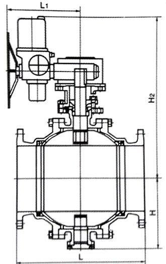
Q947F電動固定法蘭球閥連接尺寸:

PN1.6MPa下的電動固定球閥外形尺寸:
|
DN |
25 |
32 |
40 |
50 |
65 |
80 |
100 |
125 |
150 |
200 |
250 |
300 |
350 |
400 |
450 |
500 |
600 |
700 |
|
|
d1 |
25 |
32 |
40 |
50 |
65 |
80 |
100 |
125 |
150 |
200 |
250 |
300 |
337 |
387 |
438 |
498 |
591 |
686 |
|
|
L |
165 |
180 |
190 |
216 |
241 |
283 |
305 |
356 |
394 |
457 |
533 |
610 |
686 |
762 |
864 |
914 |
1067 |
1245 |
|
|
H |
50 |
55 |
80 |
102 |
114 |
127 |
152 |
184 |
219 |
273 |
360 |
395 |
430 |
470 |
550 |
580 |
700 |
800 |
|
|
電動 |
H2 |
- |
- |
- |
- |
- |
- |
- |
- |
554 |
600 |
652 |
760 |
770 |
830 |
- |
940 |
940 |
1150 |
|
L1 |
- |
- |
- |
- |
- |
- |
- |
- |
235 |
235 |
235 |
259 |
400 |
400 |
- |
410 |
410 |
410 |
|
PN2.5MPa下的電動固定球閥外形尺寸
|
DN |
25 |
32 |
40 |
50 |
65 |
80 |
100 |
125 |
150 |
200 |
250 |
300 |
350 |
400 |
450 |
500 |
600 |
700 |
|
|
d1 |
25 |
32 |
40 |
50 |
65 |
80 |
100 |
125 |
150 |
200 |
250 |
300 |
337 |
387 |
438 |
498 |
591 |
686 |
|
|
L |
165 |
180 |
190 |
216 |
241 |
283 |
305 |
381 |
403 |
502 |
648 |
648 |
762 |
838 |
914 |
991 |
1143 |
1346 |
|
|
H |
50 |
55 |
80 |
102 |
114 |
127 |
152 |
184 |
219 |
273 |
395 |
395 |
430 |
470 |
550 |
580 |
700 |
800 |
|
|
電動 |
H2 |
- |
- |
- |
- |
- |
- |
- |
- |
235 |
235 |
400 |
400 |
410 |
410 |
- |
420 |
690 |
690 |
|
L1 |
- |
- |
- |
- |
- |
- |
- |
- |
74 |
350 |
420 |
420 |
420 |
400 |
- |
400 |
410 |
650 |
|
注:以上的產品介紹,參數,圖片,數據僅用于參考,如果需更準確的資料請咨詢公司技術服務熱線:18117208829




